Hi There! Is this Your First Time?
Did you know if you Register Now to access our FREE search tools including the ability to save listings and property searches? Did you know that you can bypass the search altogether and have listings sent directly to your email address? Check out our how-to page for more info.
984 Sunridge Drive J3
SARASOTA, FL 34234-2823
- Price$249,900
- Beds2
- Baths3
- SQ. Feet1,263
- Acres6.60
- Built1983
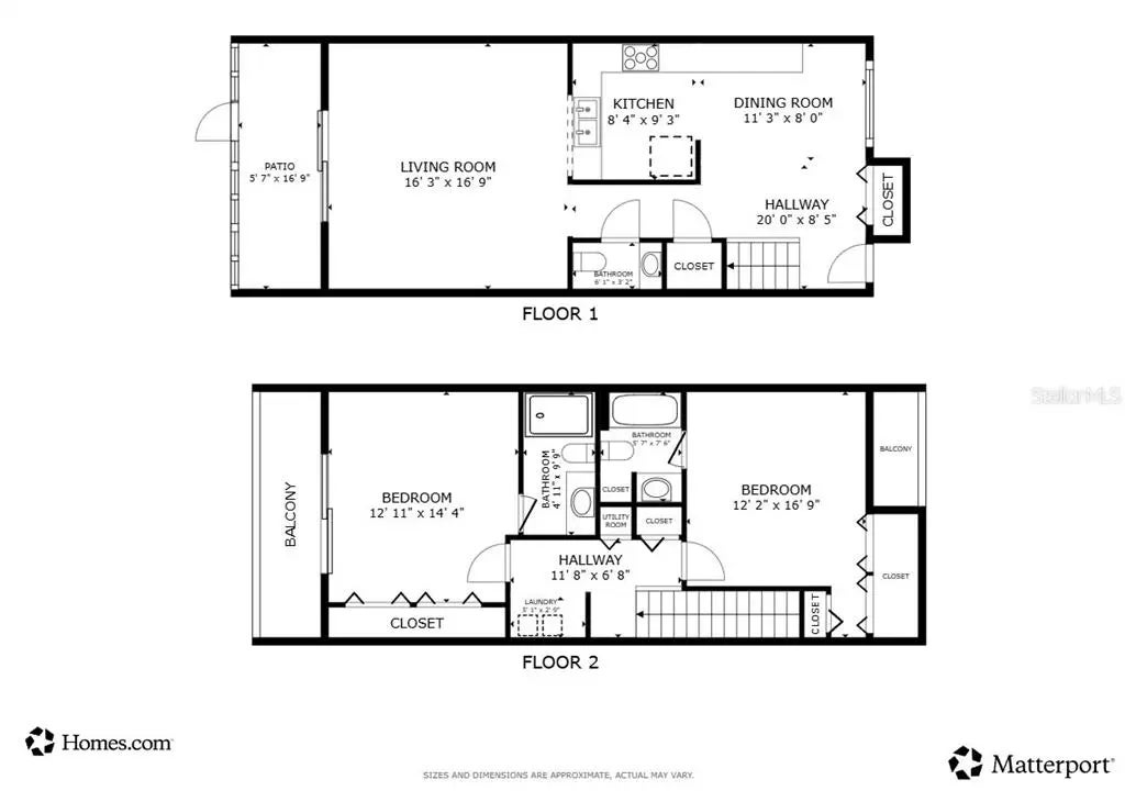
One or more photo(s) has been virtually staged. (Only the picture of the living room) Discover exceptional value and convenience in this spacious Sarasota property located just minutes from New College of Florida, Ringling College and Museum, and downtown Sarasota. With 2 bedrooms/2.5 baths and upgrades, an open floor plan, new appliances and abundant natural light, this residence is ideal as a primary home, seasonal retreat, or Sarasota investment property. The layout offers comfort and flexibility, with roommate-friendly living space perfect for families, students, or long-term guests. A low-maintenance design ensures easy living, while nearby amenities provide endless lifestyle options. Enjoy proximity to world-famous Siesta Key Beach, Lido Key, and Anna Maria Island, as well as shopping, dining, golf, and cultural attractions. Travel is effortless with Sarasota–Bradenton International Airport (SRQ) just minutes away, offering direct flights from major feeder cities including New York, Chicago, and Philadelphia. Whether you’re seeking a Sarasota second home, rental investment near campus, or a year-round residence, this property delivers comfort, convenience, and long-term value in one of Florida’s most desirable coastal regions. Each bedroom includes its own private balcony, en-suite bath, and generous closet storage—perfect for comfort and convenience. Step outside to enjoy community amenities, including a sparkling pool with tranquil pond views and well-kept grounds, all maintained for you. New roof in 2024 cuts insurance costs. Total maintenance-free makes it easy to lock the door and go. Totally renovated with new appliances make moving in fast and easy.
Get in Touch for More Information about this Property
- MLS® #A4662648
- Price$249,900
- Bedrooms2
- Bathrooms3.00
- Full Baths2
- Half Baths1
- Square Footage1,263
- Acres6.60
- Year Built1983
- TypeResidential
- Sub-TypeCondominium
- StatusActive
- ParkingAssigned, Covered, Ground Level, Guest, Off Street, Reserved
- WaterfrontLake
- Exterior FeaturesBalcony, Lighting, Sidewalk, Sliding Doors
- RoofShingle
- FoundationSlab
- Address984 Sunridge Drive J3
- AreaSarasota
- SubdivisionSUNRIDGE
- CitySARASOTA
- CountySarasota
- StateFL
- Zip Code34234-2823
- Interior FeaturesBuilt-in Features, Ceiling Fan(s), Eating Space In Kitchen, Open Floorplan, PrimaryBedroom Upstairs, Solid Surface Counters, Split Bedroom, Stone Counters, Thermostat
- AppliancesDishwasher, Disposal, Dryer, Electric Water Heater, Ice Maker, Microwave, Range, Refrigerator, Washer
- HeatingCentral, Electric
- CoolingCentral Air
- FireplaceYes
- FireplacesElectric
- # of Stories2
- Days on Market196
- ZoningRMF2
Price Change History for 984 Sunridge Drive J3, SARASOTA, FL (MLS® #A4662648)
| Date | Details | Price | Change |
|---|---|---|---|
| Price Reduced (from $255,400) | $249,900 | $5,500 (2.15%) |






























