Hi There! Is this Your First Time?
Did you know if you Register Now to access our FREE search tools including the ability to save listings and property searches? Did you know that you can bypass the search altogether and have listings sent directly to your email address? Check out our how-to page for more info.
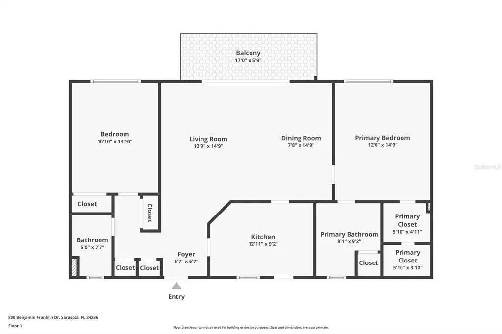
800 Benjamin Franklin Drive 607
SARASOTA, FL 34236-2137
- Price$1,000,000
- Beds2
- Baths2
- SQ. Feet1,150
- Built1978
Experience the best of beachfront living at Lido Ambassador with this rarely available 6th-floor residence, lovingly maintained by long-time owners and offering captivating Gulf views, impact-rated windows and sliders, and endless potential to personalize. Perfectly situated on the sandy shores of Lido Beach and just moments from world-famous St. Armands Circle, this condo offers the ideal balance of coastal tranquility and vibrant Sarasota living. This two-bedroom, two-bath unit features a desirable split floor plan, open living/dining area, and a private balcony where you can soak in breathtaking sunset views, sea breezes, and the ever-changing colors of the coastline. Meticulously cared for over the years, this home is move-in ready or the perfect canvas to update to your personal style. The spacious primary suite offers ample closet space and an en-suite bath, while the guest bedroom and bath provide a private retreat for visitors. Natural light, a thoughtful layout, and the overall condition reflect the pride of ownership throughout. Lido Ambassador is a well-managed community of just 74 residences, known for its pristine grounds and attentive upkeep. The Gulf-front heated pool and sun deck are currently undergoing a full renovation, soon to reopen better than ever, with a refreshed, resort-style atmosphere for residents to enjoy. Additional amenities include a fitness center, catering kitchen, private storage, and assigned covered parking. Steps from the Lido Beach Resort Tiki Bar and short distance of St. Armands Circle, Longboat Key, and the arts and culture of downtown Sarasota, this location is unmatched. Whether you’re seeking a coastal getaway, investment opportunity, or full-time residence, this 6th-floor unit delivers exceptional location, views, and value. Discover why Lido Ambassador is one of the most coveted addresses on Lido Key.
Get in Touch for More Information about this Property
- MLS® #A4669063
- Price$1,000,000
- Bedrooms2
- Bathrooms2.00
- Full Baths2
- Square Footage1,150
- Year Built1978
- TypeResidential
- Sub-TypeCondominium
- StyleFlorida
- StatusActive
- AmenitiesFitness Center, Laundry, Pool
- ViewWater
- Exterior FeaturesBalcony, Sliding Doors
- RoofOther
- FoundationSlab
- Days on Market145
- ZoningRMF4
- Address800 Benjamin Franklin Drive 607
- AreaSarasota
- SubdivisionLIDO AMBASSADOR
- CitySARASOTA
- CountySarasota
- StateFL
- Zip Code34236-2137
- Interior FeaturesElevator, Solid Surface Counters, Split Bedroom
- AppliancesDishwasher, Microwave, Range, Refrigerator
- HeatingElectric
- CoolingCentral Air
- # of Stories7
- ElementarySouthside Elementary
- MiddleBooker Middle
- HighSarasota High














































