Hi There! Is this Your First Time?
Did you know if you Register Now to access our FREE search tools including the ability to save listings and property searches? Did you know that you can bypass the search altogether and have listings sent directly to your email address? Check out our how-to page for more info.
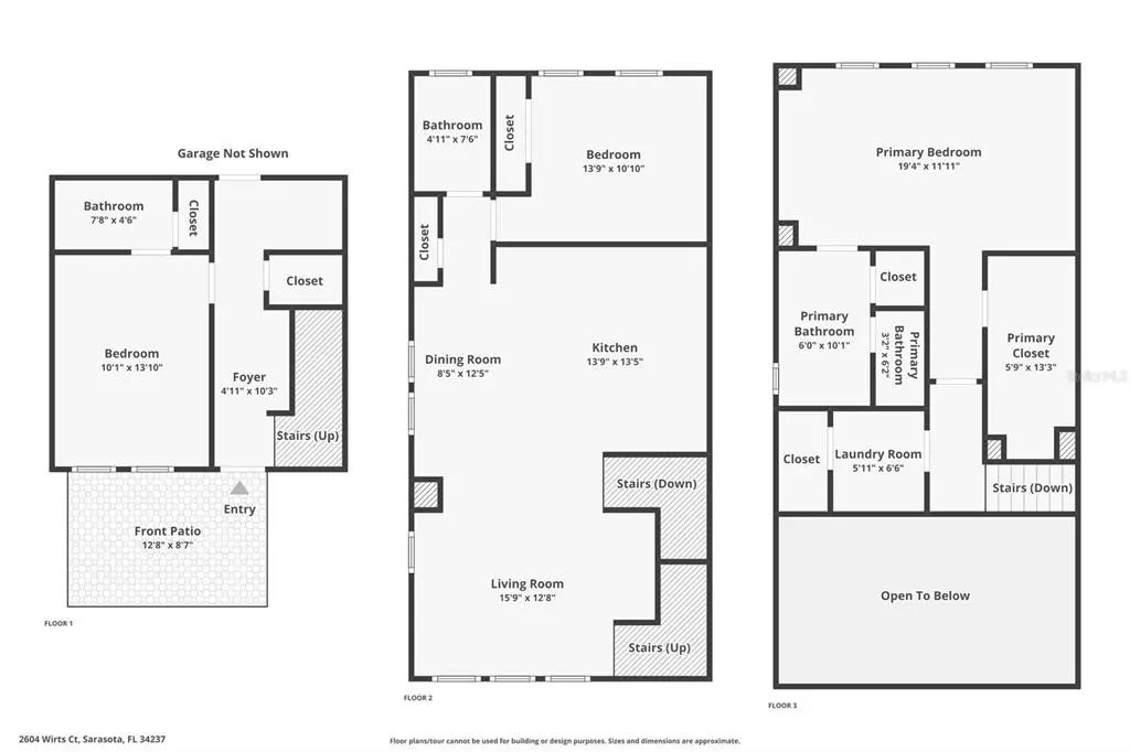
2604 Wirts Court
SARASOTA, FL 34237-4748
- Price$705,000
- Beds3
- Baths3
- SQ. Feet1,917
- Acres0.03
- Built2023
DOWNTOWN SARASOTA MODERN LIVING! Built in 2023, this luxurious 3-bedroom, 3-bath townhome offers over 1,900 square feet of thoughtfully designed living space across three levels, perfectly blending style, comfort, and functionality. Ideally positioned on the highly desirable north side of Payne Park Village, each level features its own bedroom and full bath—offering the ideal balance of privacy and togetherness. A private brick-paver, fenced front courtyard leads you to the front door, while a rear-entry two-car garage adds convenience. The open-concept kitchen is a true showpiece, featuring stainless steel appliances, quartz countertops, 42” wood cabinetry, designer pendant lighting and a spacious island with seating. The kitchen flows seamlessly into a light-filled living area with soaring ceilings and serene views of Payne Park. The primary suite is a tranquil retreat, complete with an elegant en-suite bath showcasing a glass-enclosed shower, dual-sink quartz vanity, modern lighting, and a separate water closet. Laundry is conveniently located on the third level, just steps from the primary bedroom. Residents enjoy resort-style amenities, including sidewalks, lush tropical landscaping, a heated pool and spa, lounge seating, dog park, grills, picnic areas, and more. The community offers direct access to the Legacy Trail, and just across the street lies Payne Park, featuring expansive green space, tennis courts, circus playground, skate park, disc golf course, and endless recreational opportunities. Located minutes from Downtown Sarasota, renowned for its diverse dining scene, arts and culture, parades, entertainment, special events, and the beloved weekly farmers market—this home truly embodies the LIVE, WORK, PLAY lifestyle.
Get in Touch for More Information about this Property
- MLS® #A4675496
- Price$705,000
- Bedrooms3
- Bathrooms3.00
- Full Baths3
- Square Footage1,917
- Acres0.03
- Year Built2023
- TypeResidential
- Sub-TypeSingle Family Residence
- StyleCustom, Florida
- StatusActive
- AmenitiesMaintenance, Park, Playground, Pool
- ParkingGround Level
- # of Garages2
- ViewPark/Greenbelt, Trees/Woods
- Exterior FeaturesLighting, Playground, Sidewalk
- Lot DescriptionCity Lot
- RoofShingle
- FoundationSlab
- Days on Market57
- ZoningDTE
- Address2604 Wirts Court
- AreaSarasota
- SubdivisionPAYNE PARK VILLAGE PH II
- CitySARASOTA
- CountySarasota
- StateFL
- Zip Code34237-4748
- Interior FeaturesBuilt-in Features, Eating Space In Kitchen, High Ceilings, Living Room/Dining Room Combo, PrimaryBedroom Upstairs, Solid Surface Counters, Thermostat, Walk-In Closet(s), Window Treatments
- AppliancesBuilt-In Oven, Cooktop, Dishwasher, Disposal, Dryer, Electric Water Heater, Microwave, Range Hood, Refrigerator, Washer
- HeatingElectric
- CoolingCentral Air
- # of Stories3
- ElementaryAlta Vista Elementary
- MiddleBooker Middle
- HighSarasota High
Price Change History for 2604 Wirts Court, SARASOTA, FL (MLS® #A4675496)
| Date | Details | Price | Change |
|---|---|---|---|
| Price Reduced (from $716,000) | $705,000 | $11,000 (1.54%) |
















































