Hi There! Is this Your First Time?
Did you know if you Register Now to access our FREE search tools including the ability to save listings and property searches? Did you know that you can bypass the search altogether and have listings sent directly to your email address? Check out our how-to page for more info.
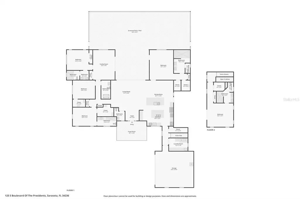
125 S Blvd Of Presidents
SARASOTA, FL 34236-1701
- Price$3,100,000
- Beds5
- Baths6
- SQ. Feet3,043
- Acres0.34
- Built1956
Welcome to this beautiful and fabulous 5 bedroom residence in one of Sarasota's most sought-after neighborhoods. Total renovation and additions done in 3 stages from 2019 to 2020 to adhere FEMA guidelines blends effortless style, thoughtful design and everyday functionality. Perfect for entertaining guests or simply enjoying relaxing Florida living, this home has been meticulously updated with high-end finishes and quality craftsmanship throughout. Open concept living area that flows seamlessly from the living room to the chef's kitchen. Large center island with seating-perfect for casual meals and entertaining. Designer Italian tile covers most living areas. 4 en-suite bedrooms and one bedroom with bath across the hall. One bedroom upstairs could be second private primary. St Armand's is steps from Lido Beach with it's sugar-white sand, calm water and stunning sunsets. You have quick access to downtown Sarasota with arts, dining, and marina. A true European-style circle with upscale boutiques, galleries and locally owned shops. Excellent restaurants ranging from casual cafes to fine dining that are walkable and lively. With St Armand's Circle boasting upscale lifestyle, proximity to beaches, dining and boutique shopping keeps the circle very lively and vibrant.
Get in Touch for More Information about this Property
- MLS® #A4680622
- Price$3,100,000
- Bedrooms5
- Bathrooms6.00
- Full Baths5
- Half Baths1
- Square Footage3,043
- Acres0.34
- Year Built1956
- TypeResidential
- Sub-TypeSingle Family Residence
- StyleTraditional
- StatusActive
- ParkingDriveway
- # of Garages2
- ViewPool
- Has PoolYes
- Exterior FeaturesLighting, Outdoor Shower, Sliding Doors
- Lot DescriptionFlood Insurance Required, FloodZone, City Lot
- RoofTile
- FoundationSlab
- Days on Market23
- Address125 S Blvd Of Presidents
- AreaSarasota
- SubdivisionSAINT ARMANDS DIV JOHN RINGLING ESTATES
- CitySARASOTA
- CountySarasota
- StateFL
- Zip Code34236-1701
- Interior FeaturesCrown Molding, Dry Bar, Kitchen/Family Room Combo, Living Room/Dining Room Combo, Open Floorplan, Primary Bedroom Main Floor, Solid Surface Counters, Solid Wood Cabinets, Split Bedroom, Thermostat, Vaulted Ceiling(s), Walk-In Closet(s), Window Treatments
- AppliancesBuilt-In Oven, Cooktop, Dishwasher, Disposal, Dryer, Exhaust Fan, Gas Water Heater, Ice Maker, Microwave, Refrigerator, Washer, Wine Refrigerator
- HeatingCentral
- CoolingCentral Air
- ElementarySouthside Elementary
- MiddleBooker Middle
- HighBooker High




















































