Hi There! Is this Your First Time?
Did you know if you Register Now to access our FREE search tools including the ability to save listings and property searches? Did you know that you can bypass the search altogether and have listings sent directly to your email address? Check out our how-to page for more info.
5019 Village Gardens Drive 31
SARASOTA, FL 34234-4016
- Price$225,000
- Beds2
- Baths2
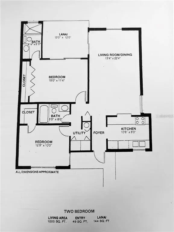
- SQ. Feet1,005
- Acres11.10
- Built1981
Turnkey! Open floor plan! Privacy! Great amenities! No CDDs! Well maintained home! The outside is the job of the diligent HOA, the inside is for the owner to make home. This is your chance to call this beautiful condo yours! It begins with a covered carport and a keyless entry. Next the kitchen has been masterfully remodeled featuring: +Granite counter tops +Gas stove and oven +Deep, soft closing cabinetry +Fan/light combination +Kitchen Stainless Steel Appliances stay with the home +Deep, open counter convenient for cooking or to use as a breakfast bar +New tile for the backsplashes and floors. The home also features +New flooring throughout most of the home +New Impact Windows throughout +Indoor laundry (Washer and Dryer stay with the home) +2 beautifully, well kept bathrooms (one is walk-in, the other has a tub) +Fans in each primary room +Gas hot water heater +Tiled and enclosed Florida room perfect for relaxing +Large storage shed. Further, the attic is large enough to use for storage. Two areas of 5x8 decking sheets have been installed in the attic to support quite a bit of weight to store whatever the homeowner needs. This home is perfectly tucked back in a cul-de-sac giving it more space in the side yard with brilliant landscaping, less traffic, and more privacy. This home is a must have. The neighborhood community has much to dol. The HOA is responsible for all things outside (roof, grass, irrigation, carports, driveways, community center, paved road which was recently redone, etc.) The community center features a heated pool, full kitchen available for entertaining your guests, pool table, shuffleboard, tennis courts, pickleball, grills, books and more. They also provide a place for recycling to be dropped off and a place to wash your car freely. Beyond the HOA is a lively, fantastic community included but not limited to Siesta Key Beach, Lido and Turtle Beach, Sapphire Shores, St. Armands Circle, Ringling Museum of Art & Design, Marie Selby Gardens, Asolo Theatre of Performing Arts, Sarasota Ballet, USF, Ringling College of Art & Design, Sarasota Bradenton Airport, UTC Mall, I could keep going but you get the point, the community offers a great deal for entertainment, dining, relaxation, grocery stores, public transit, churches, and exercise. Prepare to make your move! Call today to schedule a tour of what could be your future home.
Get in Touch for More Information about this Property
- MLS® #A4684959
- Price$225,000
- Bedrooms2
- Bathrooms2.00
- Full Baths2
- Square Footage1,005
- Acres11.10
- Year Built1981
- TypeResidential
- Sub-TypeCondominium
- StatusActive
- AmenitiesClubhouse, Lobby Key Required, Pickleball Court(s), Pool, Tennis Court(s)
- ParkingCovered, Driveway
- ViewTrees/Woods
- Exterior FeaturesIrrigation System, Rain Gutters, Sliding Doors
- Lot DescriptionCul-De-Sac, City Lot, Landscaped, Near Public Transit, Street Dead-End
- RoofShingle
- FoundationSlab
- Days on Market10
- ZoningRMF1
- Address5019 Village Gardens Drive 31
- AreaSarasota
- SubdivisionVILLAGE GARDENS PH 1
- CitySARASOTA
- CountySarasota
- StateFL
- Zip Code34234-4016
- Interior FeaturesCeiling Fan(s), Living Room/Dining Room Combo, Open Floorplan, Solid Wood Cabinets, Thermostat
- AppliancesDishwasher, Disposal, Dryer, Gas Water Heater, Microwave, Range, Washer, Water Purifier
- HeatingHeat Pump
- CoolingCentral Air
- # of Stories1
- ElementaryEmma E. Booker Elementary
- MiddleBooker Middle
- HighBooker High










































