Hi There! Is this Your First Time?
Did you know if you Register Now to access our FREE search tools including the ability to save listings and property searches? Did you know that you can bypass the search altogether and have listings sent directly to your email address? Check out our how-to page for more info.
916 Highland Street
SARASOTA, FL 34234-5739
- Price$1,595,000
- Beds5
- Baths4
- SQ. Feet2,852
- Acres0.18
- Built2024
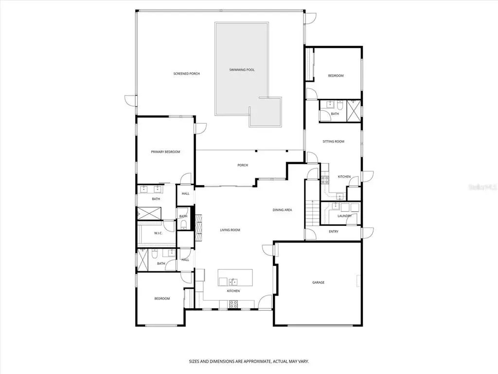
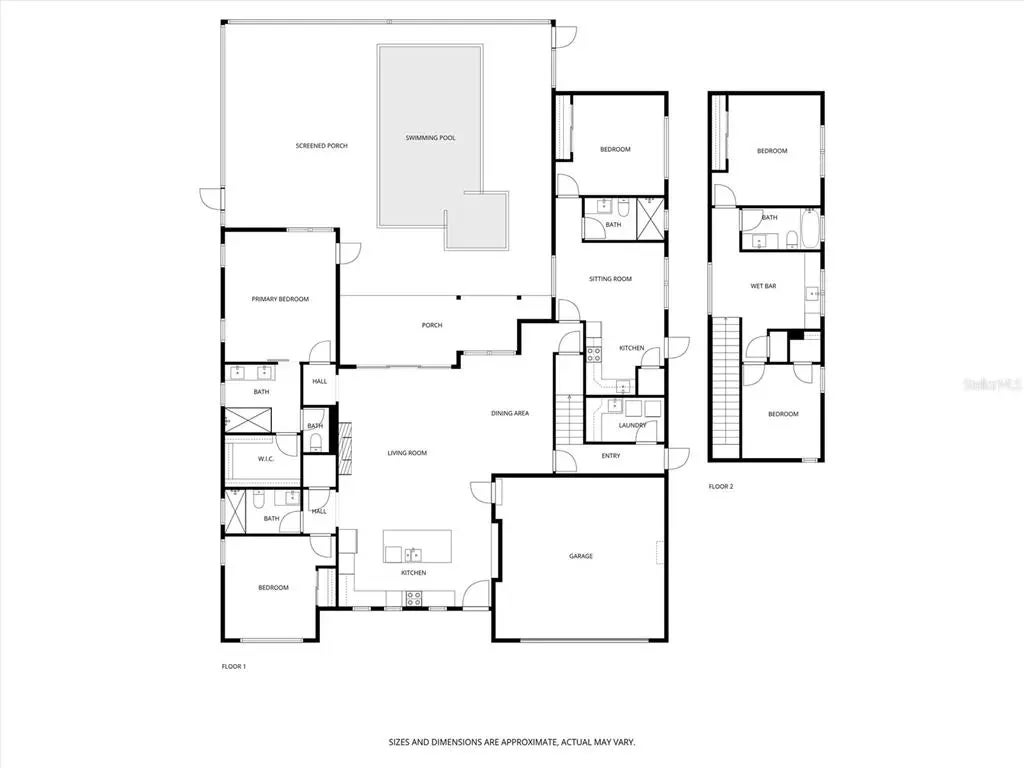
Welcome to this exceptional home built in 2024, located in the highly sought-after Indian Beach–Sapphire Shores neighborhood of Sarasota. This thoughtfully designed residence offers 5 bedrooms and 4 full bathrooms, blending modern elegance with relaxed coastal living. The primary suite is conveniently situated on the first floor, providing comfort and privacy, while a first-floor guest suite is ideal for visitors or multigenerational living. Upstairs, two generously sized bedrooms are connected by a versatile loft, creating a shared flex space perfect for a media lounge, home office, or play area. An open-concept floor plan filled with abundant natural light creates a seamless space for everyday living and entertaining. Step outside to your private outdoor oasis, featuring a heated pool and spa, fully screened for year-round enjoyment. The expansive lanai is perfect for outdoor dining, entertaining, or unwinding poolside with family and friends. Ideally located just 3 miles from Downtown Sarasota, 5 miles from St. Armands Circle and Lido Beach, and 10 miles from the world-renowned Siesta Key Beach. Enjoy easy access to premier dining, shopping, and cultural attractions, or take a short 5-minute walk to the Bayfront to enjoy breathtaking sunsets. Sarasota-Bradenton International Airport is only a short drive away, making travel effortless. This 2024-built home combines modern design, a prime location, and seamless indoor-outdoor Florida living—perfect as a primary residence, vacation retreat, or investment property.
Get in Touch for More Information about this Property
- MLS® #O6375499
- Price$1,595,000
- Bedrooms5
- Bathrooms4.00
- Full Baths4
- Square Footage2,852
- Acres0.18
- Year Built2024
- TypeResidential
- Sub-TypeSingle Family Residence
- StatusActive
- # of Garages2
- Has PoolYes
- Exterior FeaturesLighting, Outdoor Shower, Sliding Doors
- RoofShingle
- FoundationSlab, Stem Wall
- Address916 Highland Street
- AreaSarasota
- SubdivisionHIGHLAND PINES
- CitySARASOTA
- CountySarasota
- StateFL
- Zip Code34234-5739
- Interior FeaturesEating Space In Kitchen, High Ceilings, Open Floorplan, Primary Bedroom Main Floor, Solid Wood Cabinets, Walk-In Closet(s)
- AppliancesDishwasher, Disposal, Dryer, Microwave, Range, Range Hood, Refrigerator, Tankless Water Heater, Washer
- HeatingHeat Pump
- CoolingCentral Air
- FireplaceYes
- FireplacesElectric
- Days on Market12
- ZoningRSF3
Price Change History for 916 Highland Street, SARASOTA, FL (MLS® #O6375499)
| Date | Details | Price | Change |
|---|---|---|---|
| Price Increased (from $1,495,000) | $1,595,000 | $100,000 (6.69%) |














































